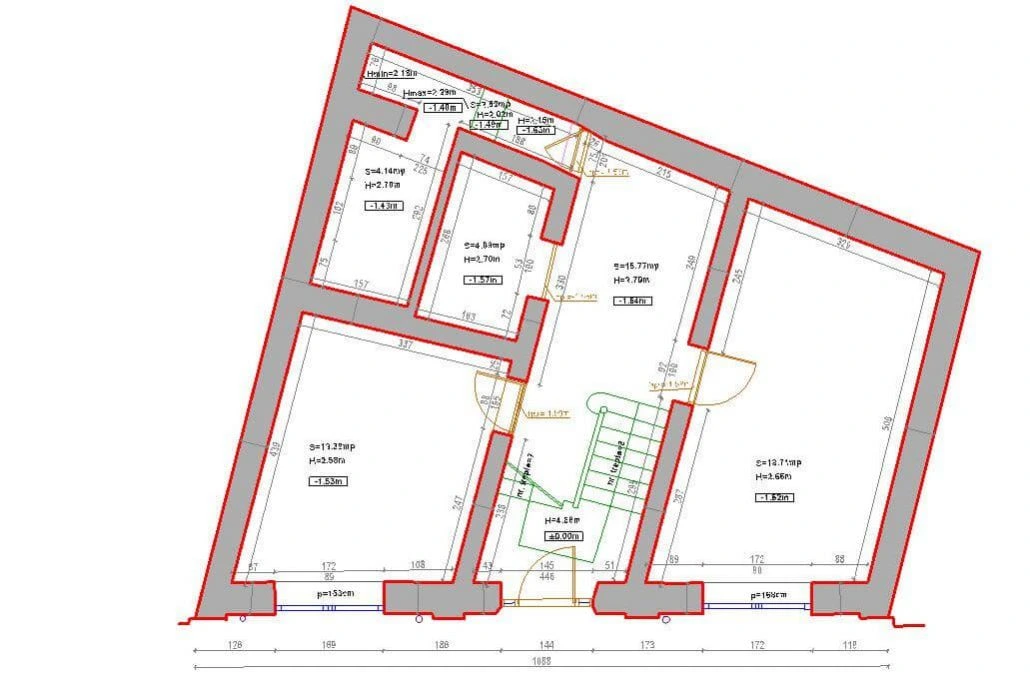
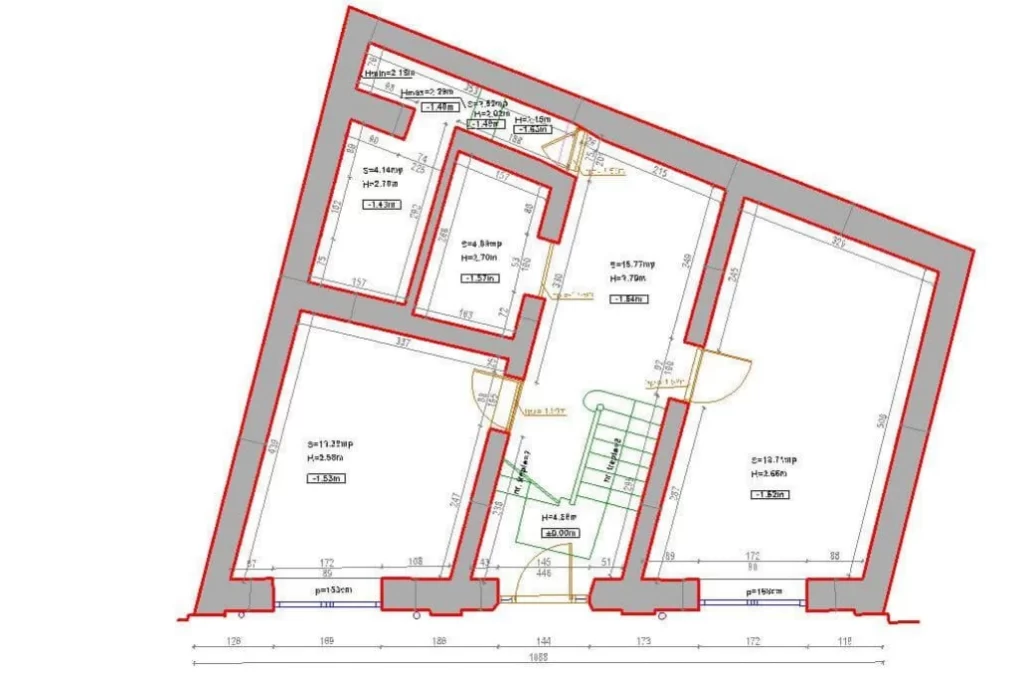
Imobil situat pe strada Speranței, nr. 09

Scanare laser 3D fațade cladire si relevare interioara (subsol, demisol, parter, pod) utilizand 3D Laser Scanner Leica P40.
Industrie: Construcții rezidențiale
Servicii: Scanare 3D
Subservicii: Scanare terestră
Locație: Romania

Distribuie pe:

Facebook
LinkedIn
Email

Proiecte asemănătoare

Spitalul Grigore Alexandrescu – Siguranță de la primul metru

Înainte ca primul metru cub de beton să fie turnat, echipa Graphein este deja acolo, monitorizând terenul în faza de excavație.
Locație: Romania
Industrie: Construcții

Spitalul Marie Curie – Precizie pentru viitor

Scanarea, monitorizarea, măsurarea asigură că spitalele nu doar există, ci rezistă. Că sunt pregătite pentru a susține toate acțiunile pentru salvarea vieții.
Locație: Romania
Industrie: Construcții

Armonie Urbană

Scanare de Precizie & Modelare Digitală pentru Integrare Coerentă
Locație: Romania
Industrie: Conservarea patrimoniului
Soluție: Digital Twin

Scanare de precizie & modelare digitală

La noua fabrică BMW din Debrecen, Ungaria, Graphein și SYNERGY CONSTRUCT oferă soluții digitale de ultimă generație într-un proiect de 2 miliarde de euro.
Locație: Ungaria
Industrie: Industrial
Soluție: BIM

Păstrarea Patrimoniului

Casa Costa-Foru, o bijuterie arhitecturală de la sfârșitul secolului XIX, a fost cândva reședința avocatului și activistului Constantin Costa-Foru.
Locație: Romania
Industrie: Conservarea patrimoniului

Între fizic și digital

La INEOS BELGIUM – Project One din Antwerp, precizia inginerească se îmbină cu inovația digitală.
Locație: Belgia
Industrie: Industrial
Soluție: BIM

Construind viitorul la Corallis Apartments

Pe strada Coralilor din nordul Bucureștiului, Corallis Apartments redefinește locuirea modernă.
Locație: Romania
Industrie: Construcții rezidențiale

Hai să conturăm împreună viitorul construcțiilor și al inteligenței geospațiale! Ia legătura cu echipa Graphein!